5 locali in vendita

Lecce, Via Armando Povero - Aria Sana
€ 325.000
101 Mq 101 Mq
2 bagni 2 bagni

5 locali in vendita

Lecce, Via Armando Povero - Aria Sana

Descrizione annuncio

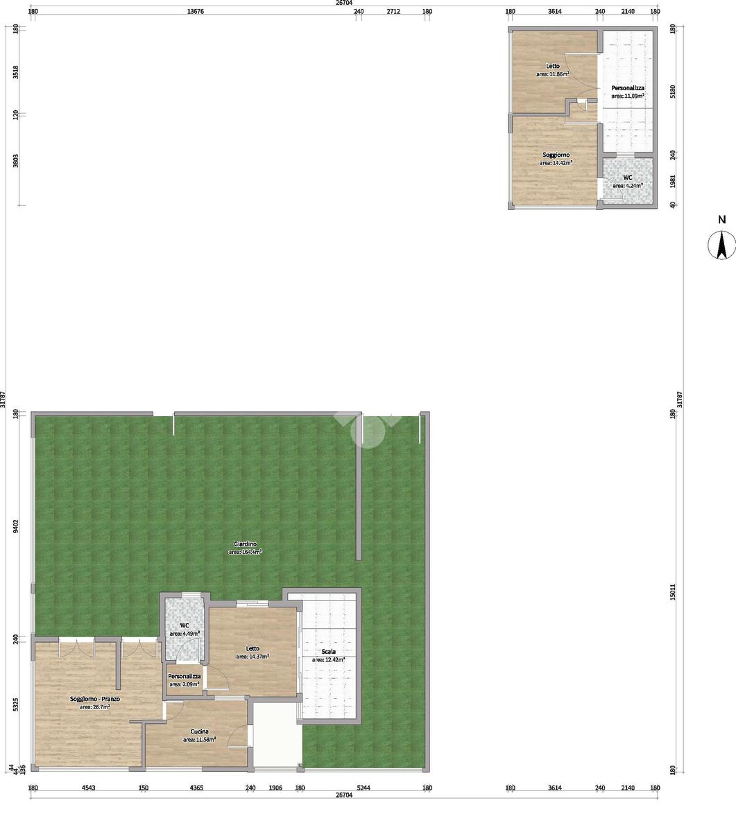
Nel cuore della tranquilla località di Aria Sana, nel comune di Lecce, proponiamo in vendita un immobile costruito nel 2016. La proprietà, in ottimo stato, offre un ingresso indipendente e un contatore acqua autonomo, garantendo privacy e comodità. L'abitazione al piano terra con un grande giardino angolare, si compone da ingresso-soggiorno, bagno, camera matrimoniale e con la possibilità di ripristinare una camera da letto dalla cucina, adattandosi così alle diverse esigenze abitative. Un ulteriore vantaggio è rappresentato dal seminterrato abitabile e con ingresso indipendente dal giardino, che può essere locato per ottenere una rendita aggiuntiva. Questa soluzione abitativa si rivolge a chi cerca un ambiente confortevole e versatile, in una zona ben servita e a breve distanza dal centro di Lecce. L'immobile rappresenta un'opportunità interessante per chi desidera investire in una proprietà moderna e funzionale.

Mostra tutto

Nelle vicinanze

Trasporto pubblico Trasporto pubblico
stazione di Lecce
stazione di Lecce
1,0 Km
Via San Cesario
Via San Cesario
130 m
Viale Grassi
Viale Grassi
230 m
Ricariche auto elettriche Ricariche auto elettriche
Eneldrive Stazione di Lecce
1,0 Km
Eneldrive Castello Carlo V
1,9 Km
Eneldrive S. Oronzo
1,9 Km
Enel PAN ADS Total ERG Tangenziale Est (direzione nord)
2,5 Km
Enel PAN ADS Total ERG Tangenziale Ovest (Direzione Brindisi)
2,5 Km
Scuole Scuole
Scuola Materna ed Elementare S. Castromediano
650 m
Istituto Comprensivo Statale "Ammirato - Falcone"
810 m
Scuola Media Statale "S. Ammirato - Falcone"
830 m
Istituto d'Istruzione Secondaria Superiore "Antonietta De Pace" sede centrale
1,1 Km
Istituto Statale "Pietro Siciliani"
1,2 Km
Farmacia Farmacia
Farmacia Alemanno De Notariis
200 m
Farmacia Lupiae
840 m
Farmacia Degliatti
1,0 Km
Farmacia Elia
1,1 Km
Farmacia Bianco-Curto
1,1 Km
Ospedali Ospedali
Vito Fazzi
1,0 Km
Supermercati Supermercati
MD
60 m
Natura Si
570 m
Eurospin
900 m
Sigma Superstore
910 m
Nat Market
1,1 Km
Negozi Negozi
Le Bontà di Mikelotto
890 m
Conad
920 m
Levoni Minimarket
930 m
Gusto Market
1,2 Km
Sartoria Asa
1,2 Km
Bar Bar
Cristallo
1,1 Km
Bar Holiday
1,2 Km
Bar
1,5 Km
Caffè Letterario
1,5 Km
Colonial Cafè Drink
1,6 Km
Ristoranti Ristoranti
La Cascina
700 m
Sapori della Cucina
870 m
Pizzeria la Cotta du Pulcinella
970 m
Lerian
970 m
Capriccio Divino
1,1 Km
Mostra tutto

Caratteristiche

Rif.:
61157980
Piano:
Terra con giardino di 3
Totale piani:
3
Posti auto:
1
Camere da letto:
2
Arredamento:
Assente
Mostra tutto
Prezzo Prezzo
€ 325.000
Rata mutuo Rata mutuo
€ 1.543 / mese
Spese annue Spese annue
€ 180
Proponi il tuo prezzoProponi il tuo prezzo
Immobile valutato con T·Valuta

Classe Energetica

A2
A2
A2
A2
A2
A2
A2
A2
A2
Anno di costruzione:
2016
Riscaldamento:
Autonomo
Tipo impianto:
A radiatori
Tipo alimentazione:
Metano

Ti interessa visionare l'immobile?

Fissa un appuntamento  Fissa un appuntamento

Richiedi informazioni

Clicca su Leggi per aprire l'informativa
* Questi campi sono obbligatori

Calcola il tuo mutuo

Semplice e senza impegno
Anticipo

( % )
Mutuo

( % )

pochi semplici passi

inserisci i tuoi dati
Questionario completato
Grazie per aver richiesto un appuntamento senza impegno con un nostro Consulente del Credito e Assicurativo.

Hai inserito correttamente tutti i dati necessari e a breve riceverai una e-mail con un link da convalidare per inviare i tuoi dati.
Affiliato
Immobiliare Lupiae Srl
Via Leuca, 35 73020 Cavallino (LE)
Via Leuca, 35 73020 Cavallino (LE)
Zona: Castromediano-San Cesario Di Lecce-Porzione del Comune di Lecce
Mostra su mappa
Orari: LUN -VEN 9.00 - 13.00 16.00 -20.00 ----- SABATO 9.00 - 13.00
Affiliato
Immobiliare Lupiae Srl
Via Leuca, 35 73020 Cavallino (LE)

2026 Tecnocasa Franchising S.p.A. - P. IVA 08365160152 - Via Monte Bianco 60/A 20089 Rozzano (MI). Ogni agenzia ha un proprio titolare ed è autonoma. Privacy policy | Policy utilizzo | Cookie policy